Ваш город - Москва

Москва
Санкт-Петербург
Алматы
Астана
Владивосток
Волгоград
Воронеж
Екатеринбург
Иркутск
Казань
Краснодар
Красноярск
Нижний Новгород
Новосибирск
Омск
Пятигорск
Ростов-на-Дону
Самара
Тверская область
Тюмень
Уфа
Хабаровск
Челябинск
Личный кабинет

Автоматические раздвижные двери: инструкция  по подготовке проема к монтажу

27.03.2026
Двери
Соловьев В. В.
Инструкция
Автоматические раздвижные двери: инструкция  по подготовке проема к монтажу

Технические условия подготовки проемов под монтаж автоматических дверей, телескопических и дверей «Антипаника» с функцией распахивания производства DoorHan.

Подготовка площадки под монтаж

1. Подготовка площадки под монтаж раздвижных автоматических, телескопических дверей и «Антипаника» 35 серии (dh-ds 35).

1.1. Дверь устанавливается на проем согласно инструкции по установке.

- Высота чистого прохода, max (H) = 3000 мм.

- Ширина чистого прохода, max (В) = 3000 мм.

- Длина короба автоматической двери, max (L) = 2*B + 100 мм = 6100 мм.

- Длина короба телескопической двери, max (L) = 3/2*B + 170 мм = 4670 мм. Короб автоматической двери крепится на притолоку проема по всей длине с шагом 400-500 мм в зависимости от веса створок. Поэтому необходимо предусмотреть несущую способность проема (притолоки) под монтаж короба. Строго запрещено устанавливать короб двери с приводом с внешней стороны помещения (с улицы). Вес привода = 25 кг. Вес створок = 1х200, 2х180, 4х90 кг.

При проеме из общестроительных несущих материалов (кирпич, бетон и т. д.) минимальная высота притолоки проема для монтажа короба двери на всю его длину должна составлять:

- для автоматической двери не менее 100 мм; Монтаж производить на отметке 85 мм, совместив низ короба двери и притолоки (рис. 1).

Рис. 1. Габариты короба автоматической двери 115 х 175 мм

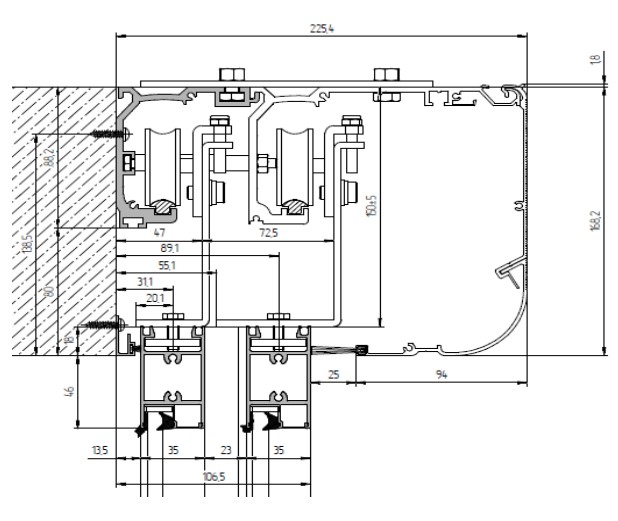
- для телескопической двери не менее 150 мм; Монтаж производить на отметке 138,5 мм от низа притолоки проема (рис. 2).

Рис. 2. Габариты короба телескопической двери 225 х 168 мм

При проеме, сформированном из профилей фасадных систем, необходимо обеспечить дополнительный ригель сверху проема, так, чтобы высота конструкции под монтаж короба привода, на всю его длину, была не менее 100/150 мм (для телескопической двери). Весь периметр проема (место установки привода, откосы, пол) должен иметь несущую способность для последующего монтажа конструкции двери (узел монтажа привода, профиль под ф/э, напольные направляющие). По необходимости на этапе устройства проема из общестроительных материалов, произвести усиления, используя стальной прокат (уголок, труба, швеллер и т.д.). Предусмотреть в зоне установки, по всей длине короба:

- для автоматической двери на высоту не менее 185 мм от низа короба (высота короба 125 мм + высота открытой крышки 60 мм);

- для телескопической двери на высоту не менее 248 мм от низа короба (высота короба 168 мм + высота открытой крышки 80 мм);

- отсутствие конструкций, предметов, затрудняющих открытие крышки привода и проведения тех. обслуживания (рис. 1, 2).

1.2. Для корректной работы дверей (открывание, закрывание) предусмотреть отсутствие движущихся частей, отражающих поверхностей и других предметов, которые могут привести к ложным срабатываниям дверей, в радиусе 1500 мм от места расположения датчика движения (в большинстве случаев датчики движения устанавливают по срединной оси привода, над проходом), эту особенность следует учитывать на стадии проектирования входных групп.

1.3. При невозможности соблюсти это условие требуется дополнительная проработка проекта. Отклонение проема от вертикали и горизонтали не более 3 мм на габарит проема. Отклонение от плоскостности, в месте монтажа короба привода, не более 2 мм на габарит короба. На момент монтажа все строительные работы по устройству проема и финишная отделка должны быть закончены. Монтаж проводится на проем, готовый к сдаче объекта.

1.4. Кабель питания (3х1,5 мм², 220В, 50Гц, многожильный медный) электропривода подвести сверху, слева от проема, отдельной линией от этажного автомата с током отсечки 10 А. Свободный конец кабеля не менее 5 м.

1.5. Штатно переключатель режимов с дисплеем и кнопка «стоп» монтируются в крышку привода. При желании расположить их в другом месте — обозначить место переключателя и кнопки стоп двери, подвести кабели управления (8х0,8 мм²) от обозначенных мест к проему, аналогично кабелю питания электропривода.

1.5.1. При установке инфракрасной кнопки (AD-31) (доп. комплектация) на дверь заказчик прокладывает кабельную трассу самостоятельно (кабель КСПВГ 4х0.5_медный) до места установки кнопки (габариты кнопки 113 х 63 х 20 мм).

*Свободный конец кабеля в месте установки пульта управления, стоповой кнопки, а также кнопки (ad-31), не менее 0,5 м, в месте проёма не менее 3 м.

1.5.2. Обеспечить монтаж тепловой завесы в зоне действия комбинированного датчика движения и безопасности (AD-34) не выше высоты монтажа датчика или на расстоянии не менее 0,5 м от датчика для стабильной работы.

Необходимые условия проведения монтажных работ

2. Во время проведения монтажных работ:

2.1. Обеспечить освещение пространства по обеим сторонам от предполагаемого места монтажа, достаточное для выполнения работ по установке и наладке двери.

2.2. Обеспечить тепловой контур для создания нормальных условий для выполнения работ по установке и наладке оборудования, если температура в предполагаемом месте монтажа ниже 10 ºC.

2.3. Закрыть доступ к месту монтажа посторонних лиц, в период с момента начала работ и до момента подписания Акта сдачи-приёмки работ.

2.4. Принять меры к устранению обстоятельств, препятствующих установке и наладке оборудования.

2.5. Оказывать содействие поставщику при выполнении работ с целью соблюдения согласованного сторонами графика их выполнения.

2.6. Обеспечить приемку, складирование груза на объекте заказчика.

2.7. Обеспечить беспрепятственный пронос монтируемого оборудования до места монтажа.

2.8. Ответственный хранитель обязан принять все необходимые (противопожарные, санитарные, охранные и т.п.) меры для того, чтобы обеспечить сохранность переданного на хранение Оборудования. Оборудование подлежит хранению в теплом (не менее +15 ºC), сухом (где относительная влажность воздуха не превышает 60 %), запираемом помещении, без прямого попадания солнечного света и климатических осадков.

2.9. Предоставить контейнер для уборки мусора и упаковочного материала.

2.10. Предоставить план скрытых коммуникаций в непосредственной близости от места монтажа двери.

Успешное проведение монтажных работ возможно лишь при тщательной организационно‑технической подготовке и соблюдении норм охраны труда противопожарной безопасности и охраны окружающей среды. Выполнение этих условий минимизирует риски срывов сроков и нештатных ситуаций, обеспечивая высокое качество и безопасность процесса.
Комментарии
Написать комментарий
Обратный звонок

Специалист концерна свяжется с вами и ответит на ваши вопросы

Или позвоните нам по телефону

+7 495 666-22-63
Напишите ваше сообщение
Добрый день, какая продукция вас интересует?
04:48
Уточните ваш вопрос, пожалуйста
04:48
Хочу купить Запросить цену Нужна техническая информация Нужна документация Другое

Оставьте ваши контактные данные, чтобы наш специалист смог ответить вам.

Файлы «куки»
Мы используем файлы «куки» (cookie) для корректной работы сайта и анализа трафика. Продолжая использовать сайт, вы соглашаетесь с условиями использования файлов cookie. Политика использования
Принять
Отказаться